小區:融僑濱江城天域
戶型:118㎡;128㎡;133㎡;138㎡;181㎡;

融僑濱江城天域雄踞武昌濱江商務區,長江主軸黃金地段,是集高端住宅、5A甲級寫字樓、購物中心、星級酒店等多種業態為一體的都會封面之作。
為了給融僑濱江城天域的業主帶來更好的生活體驗,澳華裝飾的設計師全面解析建面118-181㎡的戶型方案。從居住者出發,從場景入手,平衡視覺效果與居住功能,擴展生活秩序!
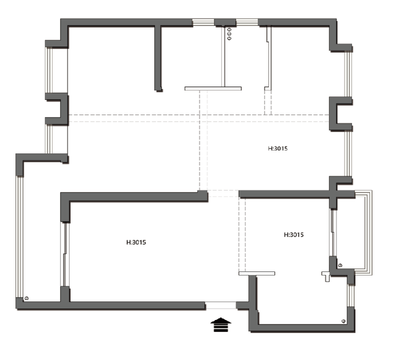
118㎡戶型解析

△原始結構圖
戶型優點
√ 采光通風都很不錯。
√ 功能區劃分清晰,動線合理。
√ 超大陽臺可分區域設計。
戶型缺點
× 廚房較小,難以滿足當代人對于廚房功能的需求。
× 一間次臥面積較小。
方案
專設健身區,享健康品質生活

思路解析
1 客廳陽臺做了聯通,視野采光好。
2 餐廳廚房半開放式,增設西廚。提升視覺空間的同時,創造了充足存儲空間。
3 將其中一間次臥的非承重墻推掉,打造一間開闊、通透的健身區域。
4 擴大衛生間面積,做干濕分離,提高生活品質。取消掉另外的一個衛生間,補充多功能房的空間。
效果圖展示



128㎡戶型解析

△原始結構圖
戶型優點
√ 大陽臺采光通風好。
√ 戶型功能區域劃分清晰。
√ 空間利用程度高。
戶型缺點
× 餐廳空間小,活動比較局限。
× 主臥面積較小,收納不充足。
方案一
獨立書房+舒適套臥

思路解析
1 客廳與陽臺聯通,增大會客區域。
2 獨立廚房設計,符合中式做飯環境,隔絕油煙。
3 設置獨立書房,享舒適靜謐的辦公空間。
4 主臥設L型衣柜,形成一個精巧的衣帽間。另外將主衛包進主臥,提高生活便捷程度。
效果圖展示


方案二
舒適三房,多人口家庭優選

思路解析
1 客廳與陽臺聯通,增大會客區域。
2 獨立廚房設計,符合中式做飯環境,隔絕油煙。
3 設置榻榻米房,增加收納,滿足多人口家庭需求。
4 主臥設L型衣柜,形成一個精巧的衣帽間。另外將主衛包進主臥,提高生活便捷程度。
效果圖展示


133㎡戶型解析

△原始結構圖
戶型優點
√ 采光通風非常好。
√ 戶型功能區域劃分清晰。
√ 擁有超級觀景大陽臺。
戶型缺點
× 生活陽臺不清晰。
× 大框架剪力墻結構固定,只能做小調整。
方案
奢華套臥+U字形開放式廚房

思路解析
1 客廳陽臺打通,增大視覺空間。
2 廚放與餐廳開放式一體設計,島臺的加入形成了一個U字形的操作空間,增加一家人的親密互動。
3 一間次臥和主衛納入主臥,并利用柜體隔出一個步入式衣帽間和一間書房,形成了一個功能強大、空間開闊的主臥套房。
效果圖展示


138㎡戶型解析

△原始結構圖
戶型優點
√ 客廳、餐廳采光好,通風好,空間明亮通透。
√ 四房兩衛,戶型功能區域劃分清晰。
√ 方正空間南北通透。
戶型缺點
× 北面房間空間較小。
× 入戶面積較小,收納空間有限
方案
實用四房+大氣開闊的公區

思路解析
1 餐廳與陽臺聯通,增加用餐空間,提升大氣視覺。
2 陽臺融入客廳,讓空間更寬敞,視野更開闊。
3 保留四房,滿足多人口家庭的居住需求。
4 主衛納入主臥,形成一個便攜舒適的套間。
效果圖展示


181㎡戶型解析

△原始結構圖
戶型優點
√ 南北通透采光性好,通風好。
√ 客餐廳功能區域空間較大,有利于舒適性的布置,增加使用率和趣味空間。
√ 室內墻體較少,布局靈活。
√ 戶型功能區域劃分清晰。
戶型缺點
× 小陽臺作用不大,易空間浪費。
方案一
奢華套臥+雙人辦公區

思路解析
1 部分陽臺與客餐廳聯通,增大會客區域,提升大氣視覺。
2 利用空間布局使得主臥門不再正對過道,解決風水難題。
3 主臥設L型衣柜,形成一個精巧的衣帽間。另外將主衛包進主臥,放置浴缸,提高生活品質。
4 面積較小的次臥做書房,打造了一個舒適靜謐的雙人辦公區域。
5 一間次臥將部分陽臺面積納入,擴大了使用空間。
效果圖展示



方案二
奢華套臥+獨立書房

思路解析
1 部分陽臺與客餐廳聯通,增大會客區域,提升大氣視覺。
2 利用空間布局使得主臥門不再正對過道,解決風水難題。
3 主臥設L型衣柜,形成一個精巧的衣帽間。另外將主衛包進主臥,放置浴缸,提高生活品質。
4 面積較小的次臥做書房,打造了一個舒適靜謐的雙人辦公區域。
效果圖展示


知精準報價 避裝修深坑
選擇您喜歡的風格
現代輕奢
現代美式
北歐
新中式
歐式
其他
知精準報價 避裝修深坑
選擇房屋面積區間
您的戶型
兩居室
三居室
四居室
五居室
六居室
知精準報價 避裝修深坑
稍等片刻,您的報價正在生中......
知精準報價 避裝修深坑
每日僅限前10名用戶