小區:華僑城歡樂天際
戶型:106㎡;116㎡;122㎡;130㎡;140㎡;

歡樂天際,是華僑城在華中投資規模最大的新型商業商務綜合體,以全新城市模型展開設想,打造集生態、居住、商業、教育、休閑、商務等為一體的齊全之城,承載了人們對于城市理想生活的無限期許。
為了給華僑城歡樂天際的業主帶來更好的生活體驗,澳華裝飾的設計師全面解析建面106-140㎡的戶型方案。從居住者出發,從場景入手,平衡視覺效果與居住功能,擴展生活秩序!
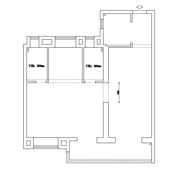
106㎡戶型解析

△原始結構圖
戶型優點
√ 戶型采光通風俱佳。
√ 功能區劃分清晰,動線合理。
戶型缺點
× 廚房較小,難以滿足當代人對于廚房功能的需求。
× 餐廳部分比較局促,活動受限。
方案一
增加收納,書房做多功能房

思路解析
1 利用可利用的空間做收納柜,最大限度擴大儲藏空間。
2 增設多功能房,可書房可客臥,可活動增加可變性
3 臥室做L型衣柜,增加儲藏。
效果圖展示



方案二
餐島一體設計+功能性套臥

思路解析
1 餐廳在提升視覺空間的同時,考慮充足存儲空間,并且打造了島臺,功能豐富多彩。
2 把陽臺和次臥打通,增加次臥使用面積,原來陽臺也夠三口之家使用。
3 主臥和書房打通,形成了一個功能齊全、開闊舒適的套臥,書房也囊括了步入式衣帽間的功能。
效果圖展示



116㎡戶型解析

△原始結構圖
戶型優點
√ 采光通風好。
√ 戶型功能區域劃分清晰。
√ 空間利用程度高。
戶型缺點
× 廚房空間較小,難以滿足當代人對于廚房功能的需求。
× 臥室尺寸較小,收納不充足。
× 餐廳位置局促,活動受限。
方案
多功能衣帽間+奢華套臥

思路解析
1 客廳與陽臺聯通,增大會客區域。。
2 開放式廚房,提升視覺空間同時提高存儲能力。
3 北面次臥改造成一個集書房與衣帽間為一體的多功能房,納入主臥,形成一個開闊舒適的大套間,極大程度提高生活品質。
效果圖展示


122㎡戶型解析

△原始結構圖
戶型優點
√ 戶型比較方正,南北通透,采光通風俱佳。
√ 動靜區劃分清晰,動線合理。
√ 承重墻較少,可改動地方較大。
戶型缺點
× 廚房較小,難以滿足當代人對于廚房功能的需求。
× 餐廳如果按常規的酒柜或餐邊柜設計,會導致動線擁擠。
方案一
獨立廚房+西廚臺增加收納

思路解析
1 客廳陽臺打通,增大視覺空間。
2 廚房外部增設西廚臺,增加廚房電器的收納。
3 擴大主臥空間,做一排衣柜,增加主臥收藏空間。
4 衛生間做成干濕分離的設計,提升衛浴體驗感。
效果圖展示



方案二
開放式廚房+多功能書房

思路解析
1 一間次臥做多功能房間,可以做客房也可以做書房。
2 衛生間做三分離布局,單獨面盆,馬桶與淋浴間做玻璃移門。
3 廚房做開放式設計,增加廚房操作臺面。
效果圖展示


130㎡戶型解析

△原始結構圖
戶型優點
√ 大陽臺采光通風好。
√ 動靜分區功能區域劃分清晰。
√ 空間利用程度高。
戶型缺點
× 廚房空間小,難以滿足當代人對于廚房的功能需求。
× 入戶較窄,活動受限。
× 次臥較小,收納不足。
方案一
開闊的LDK+陽臺一體設計

思路解析
1 客廳與陽臺聯通,增加會客區域,提升大氣視覺。
2 重點規劃廚房與餐廳,采用開放式廚房設計,延長廚房操作臺面。
3 兩房打通,設置衣帽間。
效果圖展示



方案二
舒適三房,適合多人口家庭

思路解析
1 客廳與陽臺聯通,增加會客區域,提升大氣視覺。
2 主臥衣柜L型衣柜,增加儲藏空間。
3 獨立廚房設計,隔絕油煙,符合中式做飯環境。
效果圖展示


140㎡戶型解析

△原始結構圖
戶型優點
√ 南北通透,采光和通風好。
√ 戶型功能區域劃分清晰。
戶型缺點
× 廚房面積較小,操作不便。
× 餐廳面積較小,活動空間受限。
方案
時髦餐島+去客廳化設計

思路解析
1 通體背景柜處理,解決儲物量和儲物分類。
2 餐桌連接島臺一體設計,實用也潮流。
3 廚房雙向聯動門,可開放可封閉,防油煙也可拓展空間視覺。
4 書房客廳一體,外加連體陽臺,更廣闊的家庭互動空間。
效果圖展示



知精準報價 避裝修深坑
選擇您喜歡的風格
現代輕奢
現代美式
北歐
新中式
歐式
其他
知精準報價 避裝修深坑
選擇房屋面積區間
您的戶型
兩居室
三居室
四居室
五居室
六居室
知精準報價 避裝修深坑
稍等片刻,您的報價正在生中......
知精準報價 避裝修深坑
每日僅限前10名用戶