案例簡介:色彩明亮的客廳,暖冬的時候陽光灑滿整個客廳理想空間,質地柔軟的沙發,立體感極強的裝飾立面,陽光穿透灰色的紗簾灑落在橡地板上,顯現出無盡的溫暖與明朗,讓房子的主人更加舒適享受生活帶來的幸福時光。放屋里每一處的軟裝都代表了新步入婚姻的新人對美好生活的向往,每一處都很溫馨。
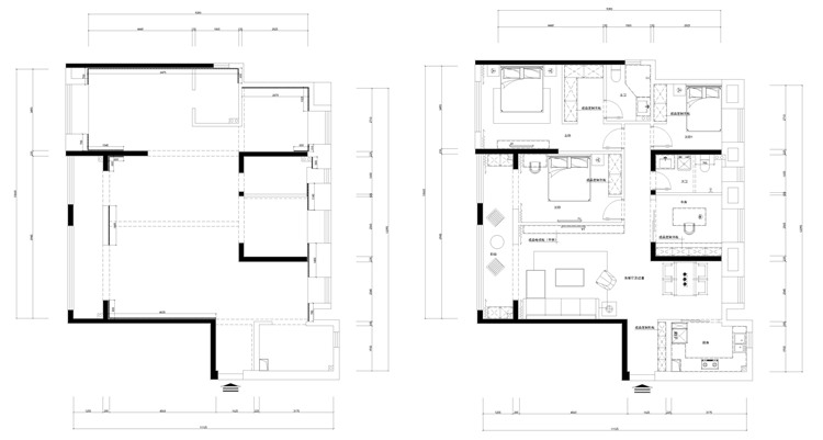
戶型解析:

正榮紫闕臺三居室現代簡約風格住宅的面積是141平方米,房子的陽臺很大陽光很暖,客廳空間具有保障朝向很理想。不足的則是三個臥室在分布的位置方面比較擁擠,存在著臥室不私密方面的問題。不過房屋的廚房是具有窗戶的,烹飪的同時完全可以滿足家庭中通風衛生的要求。
客廳:




立體感強的裝飾墻面搭配造型獨特的布藝沙發看起來便很溫暖,客廳的綠植增加了聲氣的同時造型也獨特簡單。
臥室:


保障了床鋪和儲物功能都重視的同時,臥室內部還安裝了電視機,在臥室休息的時候可以觀看電視,符合了很多年輕人的生活習慣。
書房:


簡約的書柜以及工作的座椅可以感覺到現代的氣息,書房的燈也透露出來一種藝術感。
知精準報價 避裝修深坑
選擇您喜歡的風格
現代輕奢
現代美式
北歐
新中式
歐式
其他
知精準報價 避裝修深坑
選擇房屋面積區間
您的戶型
兩居室
三居室
四居室
五居室
六居室
知精準報價 避裝修深坑
稍等片刻,您的報價正在生中......
知精準報價 避裝修深坑
每日僅限前10名用戶