案例解析:該房為業主改善住房,男主人經常出差,比較喜歡酒店風格,女主喜歡健身,喝茶,故在客廳陽臺處設計留了健身區,吧臺區。該房主兒子和父母會偶而來居住,所以另外兩間房都以臥室設計為主,并設置了書桌功能。雖然設計整體很簡單,卻可以滿足自己喜好的同時也滿足了一家人居住的需求。
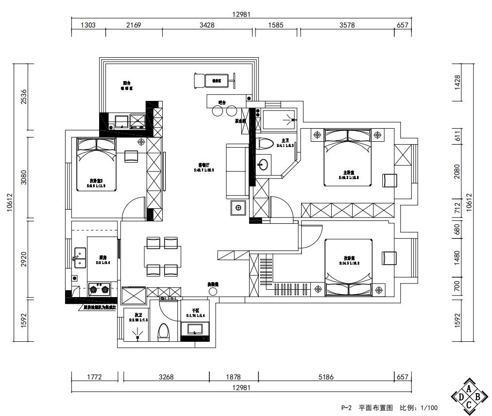
戶型解析:

方園小區三居室酒店風格住宅的面積是120平方米,經典的三室戶型兩個衛生間保障了居住的便捷性。房間的唯一缺憾便是客廳是比較狹長的,不過電視墻的空間范圍是很大的,完全可以滿足日常中使用的需要。兩個臥室距離比較近,而另外一個臥室則確保了私密性,居住的體驗感很好。
玄關:

現代的鞋柜設計滿足了衣服鞋子的擺放空間,入戶和玻璃之間采取了隔空玻璃的設計,既滿足了隔離感又不會覺得很悶。
客廳:


動靜結合的客廳設計效果理想,沙發椅滿足了日常生活中休閑的需要。客廳陽臺放入了健身器材,在家里便可以隨時健身具有理想體驗。
臥室:


臥室和書寫功能融合為一體,休息之后可以完成自己的工作,床鋪背景墻符合酒店風格,每一天都能夠感受居住酒店的快樂。
知精準報價 避裝修深坑
選擇您喜歡的風格
現代輕奢
現代美式
北歐
新中式
歐式
其他
知精準報價 避裝修深坑
選擇房屋面積區間
您的戶型
兩居室
三居室
四居室
五居室
六居室
知精準報價 避裝修深坑
稍等片刻,您的報價正在生中......
知精準報價 避裝修深坑
每日僅限前10名用戶