案例簡介:本案例的客戶是一口三家,其中男主人是大公司的高管,他希望家居空間能夠呈現靜謐的舒適感,以提升自己休憩質量。設計師在與業主一家三口進行深入的溝通之后,選擇了輕奢風進行軟裝,同時借助深色系的色彩來營造一種空間的靜謐氛圍。為了給孩子營造一個充滿童真感的休憩空間,兒童房則借助各類幼兒化的元素進行裝飾點綴,打造孩子的夢幻天堂。
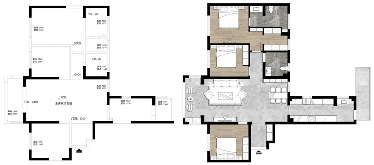
戶型解析:

這套位于泛海國際的四居室住宅建筑面積約為175㎡,戶型結構雖然不算很規整,但是好在也沒有各種難以設計處理的犄角空間。為了將空間更加合理的利用,設計師將房屋中相對比較突兀的區域改造成廚房,這樣能夠借助戶型的結構將廚房油煙更好的釋放出室外。同時,為了提升主人的家居質量,內部兩個小空間則直接融入主臥中改造成主臥附帶的衛浴空間與迷你衣帽間。
客廳:

大面積的核桃木搭配上深灰色的暗紋地毯,營造一種幽深的靜謐感,大面積的落地窗則讓城市的繁華景象成為室內裝飾點綴。
餐廳:

簡約的灰色餐桌椅強調實用性,墻面處的壁畫則為就餐區域增添藝術時尚氛圍。
廚房:

廚房空間相對比較狹長,因此設計師沒有做過多的設計,而是強調可能性,同時借助簡約的暗紋瓷磚提升廚房空間的品質格調感。
臥室:



灰色背景墻搭配上嵌入式衣柜,整體給人靜謐柔和感,由線條組成的掛畫簡約清新而又不失個人色彩。
知精準報價 避裝修深坑
選擇您喜歡的風格
現代輕奢
現代美式
北歐
新中式
歐式
其他
知精準報價 避裝修深坑
選擇房屋面積區間
您的戶型
兩居室
三居室
四居室
五居室
六居室
知精準報價 避裝修深坑
稍等片刻,您的報價正在生中......
知精準報價 避裝修深坑
每日僅限前10名用戶