案例簡介:本案例的業主追求一種返璞歸真的清新自然式生活,在喧囂都市打拼久了的他希望能夠擁有一個簡約清新的住宅,他希望設計師能夠放棄各類繁瑣且花里胡哨的裝飾設計,利用最為簡潔的元素與色彩為自己打造出一座夢想的心靈休憩所。在與業主進行深入交流后,設計師為業主選擇了簡美式風作為裝修主基調,通過清新的色彩來營造古樸潔凈的自然美。
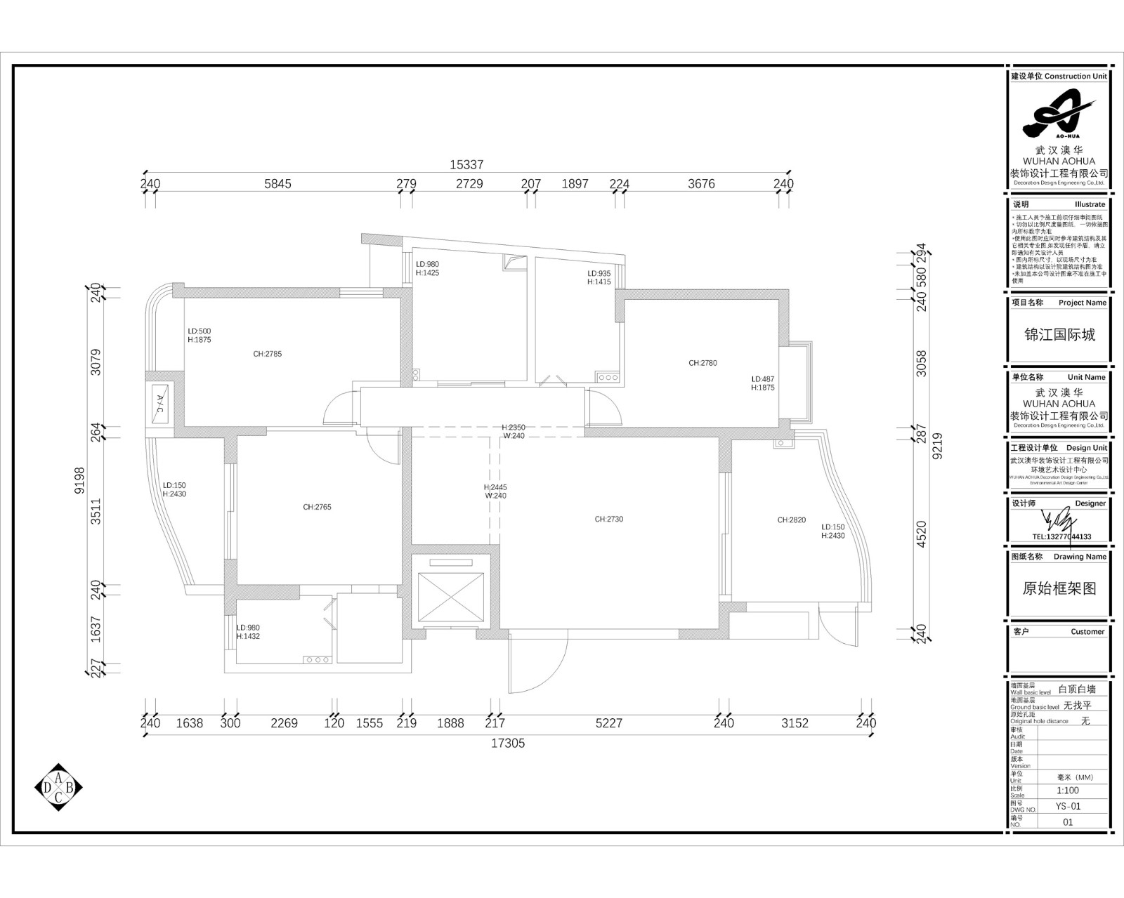
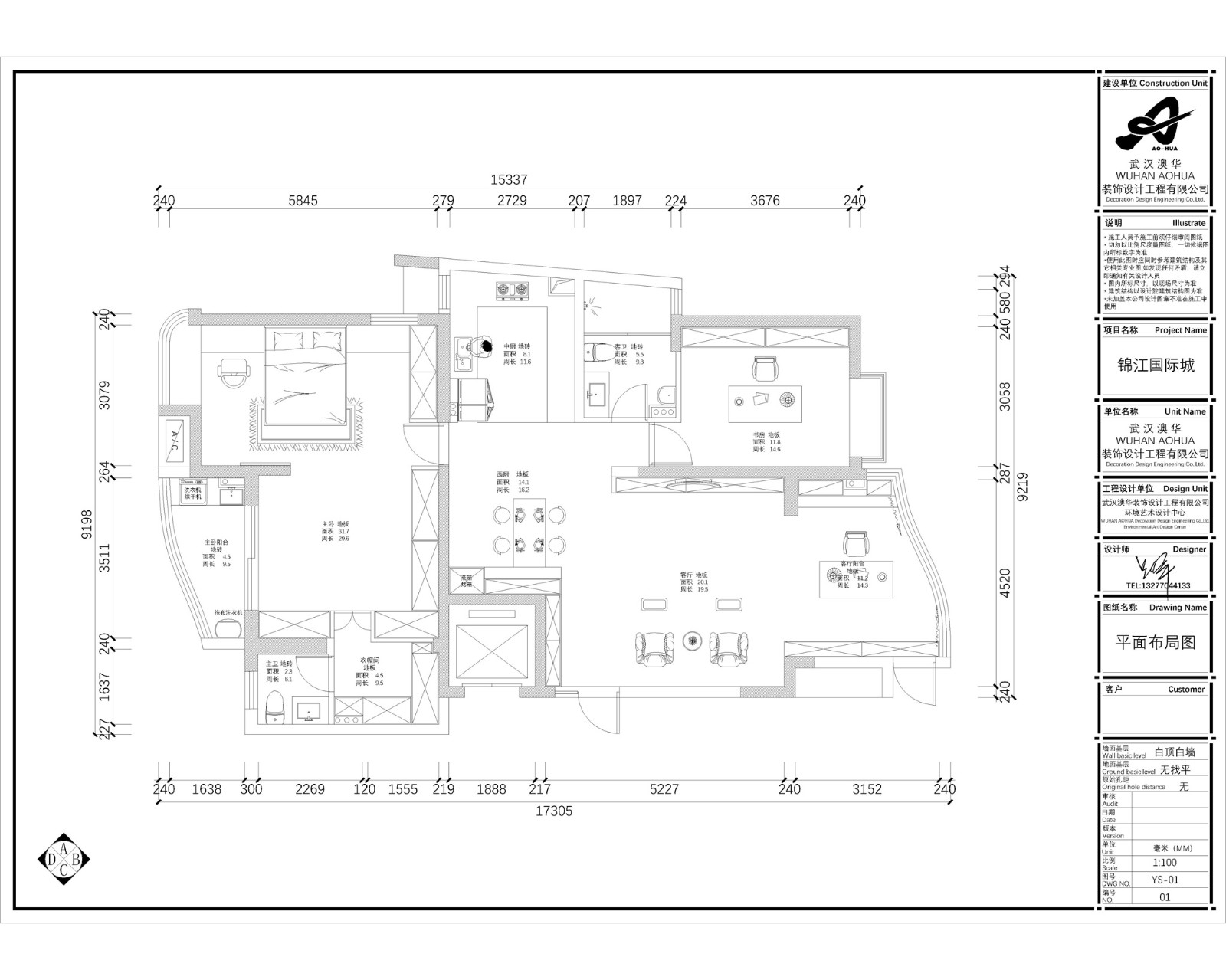
戶型解析:


錦江國際這套三居室的140㎡的住宅原有的戶型結構并不算平整,存在一定的斜角空間,因此需要設計師將空間進行更加合理的利用,避免斜角帶來的視覺壓迫感。而由于業主喜愛閱讀及高品質的生活,因此設計師將次臥改造成一個書房,同時借助收縮式的家具設計,滿足客人來訪時的居住使用需求。
客廳:


大面積的白色搭配上細節處的線條處理,簡約耐看而又不失優雅高級格調。
書房:

大面積的淡藍色點綴上藝術照片墻,簡約而又不失去生活氣息,白色辦公桌則與客廳色彩形成呼應強調。
臥室:


休憩空間使用與房屋整體裝修一致的白色,強調功能空間之間的銜接感,再搭配以少量的藕粉色,營造溫馨靜謐感。
知精準報價 避裝修深坑
選擇您喜歡的風格
現代輕奢
現代美式
北歐
新中式
歐式
其他
知精準報價 避裝修深坑
選擇房屋面積區間
您的戶型
兩居室
三居室
四居室
五居室
六居室
知精準報價 避裝修深坑
稍等片刻,您的報價正在生中......
知精準報價 避裝修深坑
每日僅限前10名用戶