案例簡介:本案例的業主是一對80后夫妻,兩個人在大城市打拼多年終于買了屬于自己的房屋,對于這套來之不易的房屋兩人格外重視,而裝修上也十分上心。而設計師為了保障能夠呈現出讓業主滿意的裝修效果,在前提與這對夫妻進行了較為深入的溝通,在充分了解業主喜好、生活習慣后對空間進行了再規劃設計,同時通過材料本身的質感與線條搭配來營造一種簡歐輕奢的小資格調感。
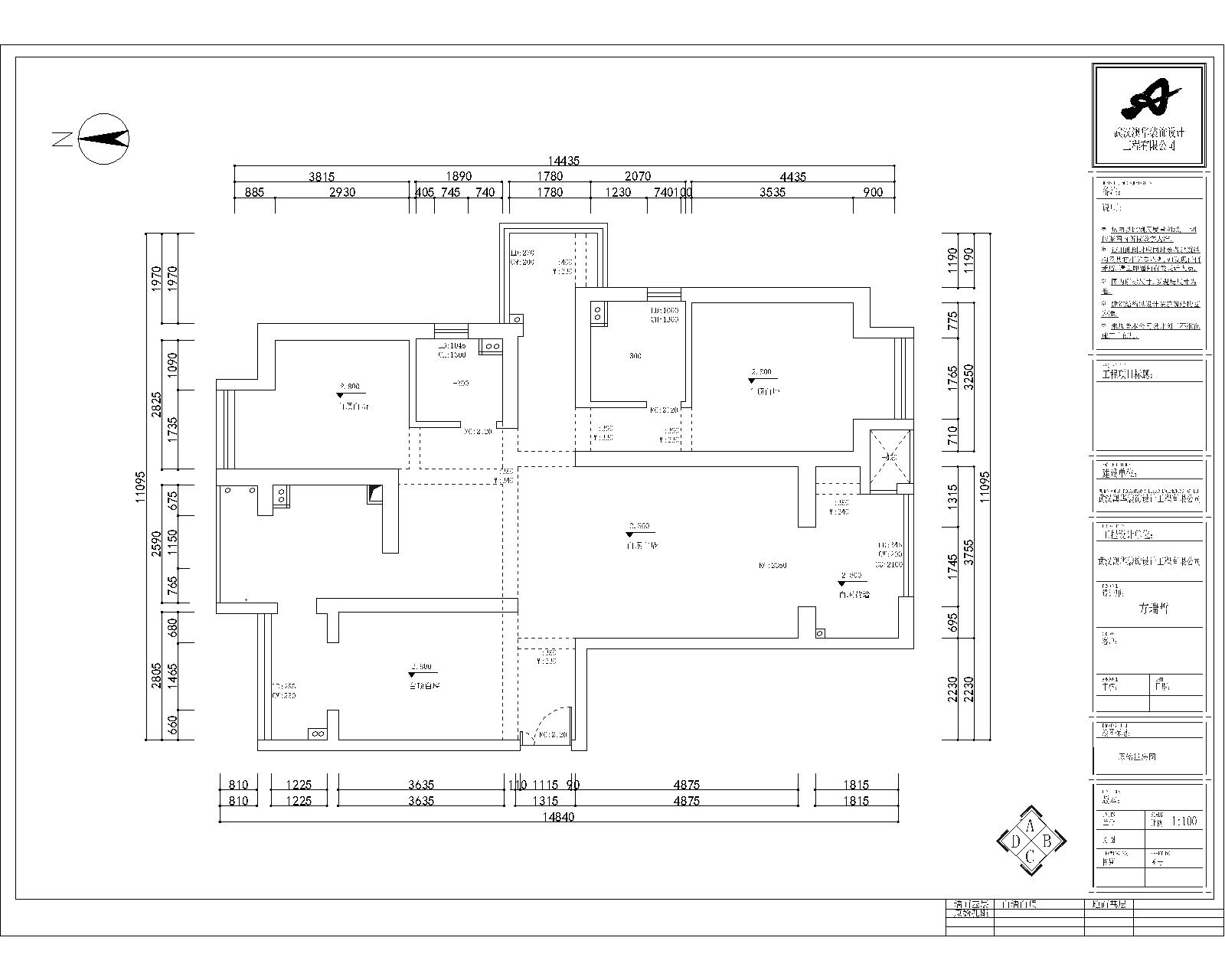
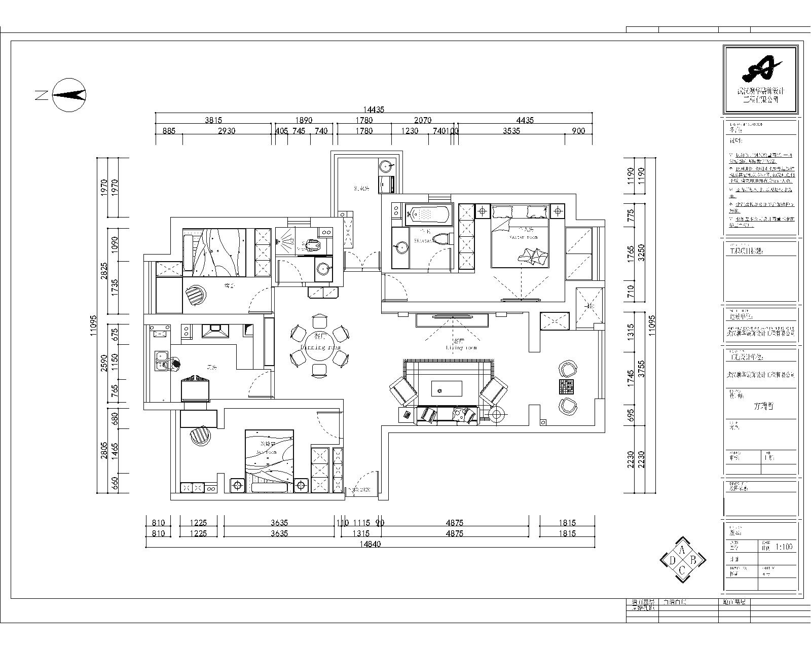
戶型解析:



世茂錦繡長江的這套150㎡的四居室主宰整體格局呈現一個大正方形,因此在規劃設計上不適合將動靜區域完全分隔開,而設計師則利用將就餐區域作為家居中心點,臥室、廚房、客廳則圍繞就餐區域展開進行設計,有效提升空間利用率的同時有效提升了空間結構的層次感與豐富感??臻g整體軟裝則以暖黃色為主基調色,與簡歐風相契合,強調溫和典雅氛圍。
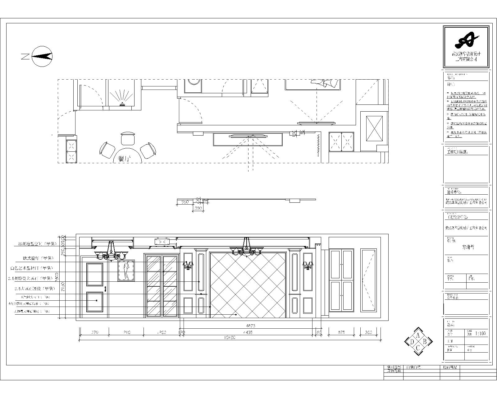
客廳:

客廳區域使用了大量的歐式復古元素,在大面積暖黃色面的構造下點綴以造型設計,讓空間的簡歐華麗氛圍得到從容表達。
廚房:

簡約的暗紋瓷磚搭配上大面積的櫥柜,簡約耐看而又不失實用性。
臥室:

帶有印花處理的白色墻紙搭配以簡約的小清新掛燈就構成了臥室區域的整體軟裝,整體視覺效果清新簡約而不單調。
衛生間:

衛生間區域使用了大面積的淡黃色暗紋瓷磚鋪設墻面,強調簡歐風情。而櫥柜處的浮雕處理,則讓整個衛生間區域更具時尚感。
知精準報價 避裝修深坑
選擇您喜歡的風格
現代輕奢
現代美式
北歐
新中式
歐式
其他
知精準報價 避裝修深坑
選擇房屋面積區間
您的戶型
兩居室
三居室
四居室
五居室
六居室
知精準報價 避裝修深坑
稍等片刻,您的報價正在生中......
知精準報價 避裝修深坑
每日僅限前10名用戶