案例介紹:本案例業主為即將結婚的新婚夫妻,二人在婚前購置了這套房,但是由于工作繁忙,因此選擇將所有的工程專業的人士來負責,而他們的要求就是能夠化解空間狹窄劣勢,同時營造出一種喜慶而又不落俗套的個性化氛圍。設計師按照業主們的需求選擇了輕奢風作為家裝風格,搭配以各種細節感十足的裝飾,以在無形之中強調貴氣與喜慶。
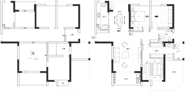
戶型解析

藏瓏苑的這套152㎡的三居室房屋空間結構局限性較小,房屋戶型最大的問題在于會客區域的面積不夠寬敞,因此在設計的時候需要充分考慮如何將面積合理利用,避免客廳空間看起來過于小家子氣。同時,設計師將主臥的長度延長,融入衣帽間設計,以滿足女主人的起居使用需求。
客廳:

由于客廳區域的寬度并不寬,因此設計師在對客廳進行設計的時候選用了相對比較簡約的元素及簡潔的色彩,以從視覺上起到放大空間作用。整個空間除了縱向墻面裝飾外,沒有其他任何裝飾點綴,有效保障了空間的整潔感。
餐廳:

就餐區域沿用了與客廳一致的燈光與配色,以保障整個家居空間具有一定銜接感。而餐廳與客廳的隔斷選用了玻璃推拉門設計,在保障就餐區域擁有足夠透明的同時,還避免還區域顯得過于獨立,缺乏空間整體和諧感。
廚房:

廚房選用了簡潔的白色作為主色調,以強調潔凈舒適感,再穿插以簡約的黑色,以保障空間的色彩不會過于單一,有效提升了空間的精致感。
臥室:

臥室背景墻使用白色護墻板設計,字畫裝飾,使空間散發出中華文化的源遠流長。
知精準報價 避裝修深坑
選擇您喜歡的風格
現代輕奢
現代美式
北歐
新中式
歐式
其他
知精準報價 避裝修深坑
選擇房屋面積區間
您的戶型
兩居室
三居室
四居室
五居室
六居室
知精準報價 避裝修深坑
稍等片刻,您的報價正在生中......
知精準報價 避裝修深坑
每日僅限前10名用戶