案例簡介:
對于多子家庭來說,175㎡的房屋其實并不算大,因為需要預留出較多的休憩空間,且需要滿足更多家庭成員的使用需求。再者,業主所青睞的新中式裝修風格對于空間的面積也有著一定的要求,因此該房屋的設計難點就在于如何將不夠寬敞的房屋打造出新中式渾厚大氣美。設計師在進行設計時,在空間的規劃設計上做了一定的設計,以避免過多隔斷破壞新中式風所特有的大氣感與靈動美。
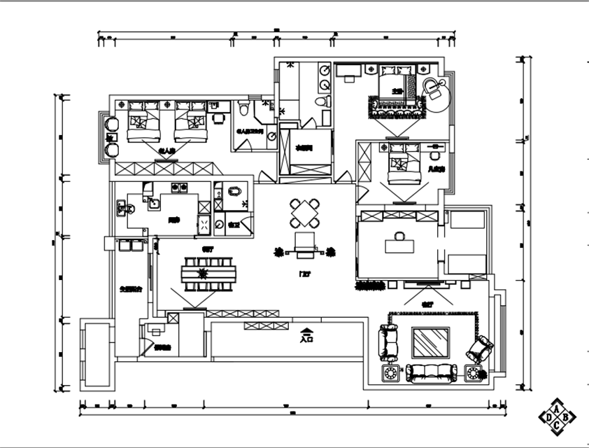
戶型解析:

廣電蘭亭瓏府的這套175㎡的四居室房屋其實戶型相對比較合理,并沒有出現各種難以利用設計的角落,因此空間的設計重點將在如何滿足多子家庭的起居使用需求與如何呈現新中式風的大氣美。設計師通過利用一些帶有中式風情的元素進行空間裝飾點綴,強調中式所特有的韻味美,同時利用多個嵌入式設計來提升空間的利用率,避免房屋看起來過于的壓抑、局促。
玄關:

新中式的玄關更多強調的是一種韻味而非實用性,因此設計師在對玄關處進行設計的時候,僅使用了一面不大的裝飾墻,同時利用中式藝術畫的點綴,來營造一種入門處即可觀賞的優雅。
客廳:

客廳區域使用了非常經典的新中式配色,大面積的灰色點綴上帶有渾厚氣息的深棕色木質材料,一種優雅的韻味之美展露無疑。藍色的沙發則讓空間多了一抹現代時尚氣息。
餐廳:

餐廳空間則是借助材料本身的紋理進行空間裝飾,大理石瓷磚的灰色暗紋、木質墻面的天然紋理,都很好的會就餐區域注入了精致典雅美。
臥室:



臥室使用了最為常見的中式設計手法——對稱,通過對稱的床頭設計來營造一種端莊典雅的氛圍,復古的臺燈則讓空間的復古中式氣息能夠得到更好的體現。
書房:

帶有幾何圖形的藝術墻面搭配上簡約的空間設計,為書房空間奠定了一股優雅寧靜的氛圍。而色彩較為艷麗的灰藍色地毯,則讓空間多了一抹明媚的韻味。
衛生間:

衛生間空間借助透明的玻璃進行干濕分離,以避免原本就不大的衛生間看起來過于壓抑。一顆小小的橘色盆栽,則讓衛生間更顯清新典雅。
知精準報價 避裝修深坑
選擇您喜歡的風格
現代輕奢
現代美式
北歐
新中式
歐式
其他
知精準報價 避裝修深坑
選擇房屋面積區間
您的戶型
兩居室
三居室
四居室
五居室
六居室
知精準報價 避裝修深坑
稍等片刻,您的報價正在生中......
知精準報價 避裝修深坑
每日僅限前10名用戶