案例簡介:
現代風的時尚氣息與美式風的浪漫風情都是業主都偏愛的,也因此在進行該房屋裝修的時候,融入了兩種裝修風格的設計元素,讓空間在風格的碰撞中呈現出不一樣的美感,讓幸福生活得到更進一步的提升。而色彩的搭配選擇上,則是選用了經典且保守的灰白搭配作為主基調色,以避免空間出現多種裝修風格而顯得過于凌亂。
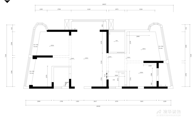
戶型分析:


位于楚天都市雅園的這套120㎡三居室房屋,空間并非傳統的方正格局,需要將犄角空間進行更加合理的規劃設計,才能保證每一寸空間都不會被浪費。軟隔斷與硬隔斷的搭配使用,讓不同功能空間的劃分有了主次之分,而兒童區域則使用了靚麗的色彩進行裝飾,營造童心韻味。臥室區域則將外墻直接打通設計為落地窗,彰顯空間的明亮格調美。
客廳:

客廳區域使用了經典的灰白色搭配,強調素雅潔凈氣息。幾何放射形圖案的背景墻面則為客廳注入了一抹律動氣息,避免空間看起來過于的素雅單調。
餐廳:

灰色的墻面搭配上山水畫,為餐廳區域奠定了清新氛圍。大面積的置物柜既提升了空間利用率,又可巧妙利用各類物件裝飾點綴空間。
臥室:


淡暖黃色的墻面搭配上幾何圖形地毯,強調一種素雅柔和氣息。大面積的落地窗則確保陽光能夠直接撒落在床上,讓空間多一抹溫暖自然美。
知精準報價 避裝修深坑
選擇您喜歡的風格
現代輕奢
現代美式
北歐
新中式
歐式
其他
知精準報價 避裝修深坑
選擇房屋面積區間
您的戶型
兩居室
三居室
四居室
五居室
六居室
知精準報價 避裝修深坑
稍等片刻,您的報價正在生中......
知精準報價 避裝修深坑
每日僅限前10名用戶