經驗豐富
案例解析:本案例的主人公剛剛退休,相比于各種時尚元素而言,她更加偏愛傳統而又韻味感十足的中式元素。因此設計師在裝修風格的挑選上選擇了傳統的中式風,同時融入一些現代化元素,這樣能夠在強調室內空間復古韻味的同時,還能夠較好的滿足現代人的起居使用需求。而空間劃分上,設計師則在考慮業主家人使用需求的前提下進行了再規劃,以保障能夠滿足不同家庭成員的使用需求。
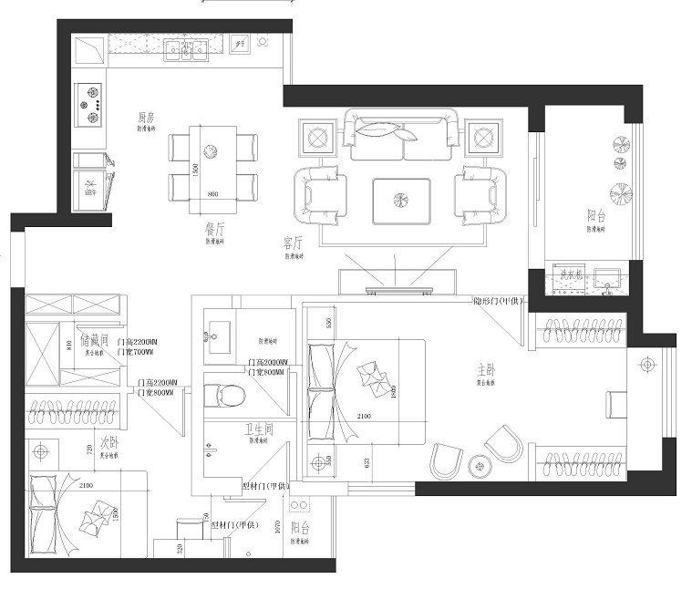
戶型解析:


融創瀾岸的這套105㎡的三居室主宰整體的戶型結構相對比較平整,幾乎沒有太大的格局缺陷,因此空間設計難度不大。為了提升空間的實密度與美觀度,設計師將玄關處設置了一定的遮擋,避免室內景象直接映入來者眼前。同時,利用大面積落地窗設計,將室外的好風光進入室內,起到較好的室內裝飾點綴效果。
客廳:



大理石打造的電視背景墻清新而又不失高貴感,搭配上對稱式木質結構,平添一抹溫厚柔和之美。
餐廳:


就餐區域被設置在入門玄關的拐角處,有效避免了角落空間的浪費。同時借助一個木質儲物柜起到視覺隔斷的作用。
廚房:

L形的設計保障了廚房空間的合理利用,有有效避免出現轉身困難的情況。深棕色木質儲物柜與白色大理石臺面的碰撞,則讓空間層次感更為豐富。
臥室:


大面積藍色碎花壁紙搭配上木質地板,簡約清新而又耐看。
衛生間:

大面積的淺色瓷磚從視覺上起到放大空間作用,玻璃滑門則讓空間的不同功能區域得到更為明顯的劃分。
案例簡介:現在不少年輕的女孩子都會在婚前購置一套自己的房子,這不僅僅是生活品質的保障,也是個人能力的彰顯,本案例的業主也同樣不例外。作為一個年輕的95后都市白領,她有著自己對生活的領悟,且不喜歡過于花里胡哨的設計。設計師根據業主的喜好選擇了簡約裝修風格,同時將空間進行了再規劃設計,滿足家里來客人時的居住需求。
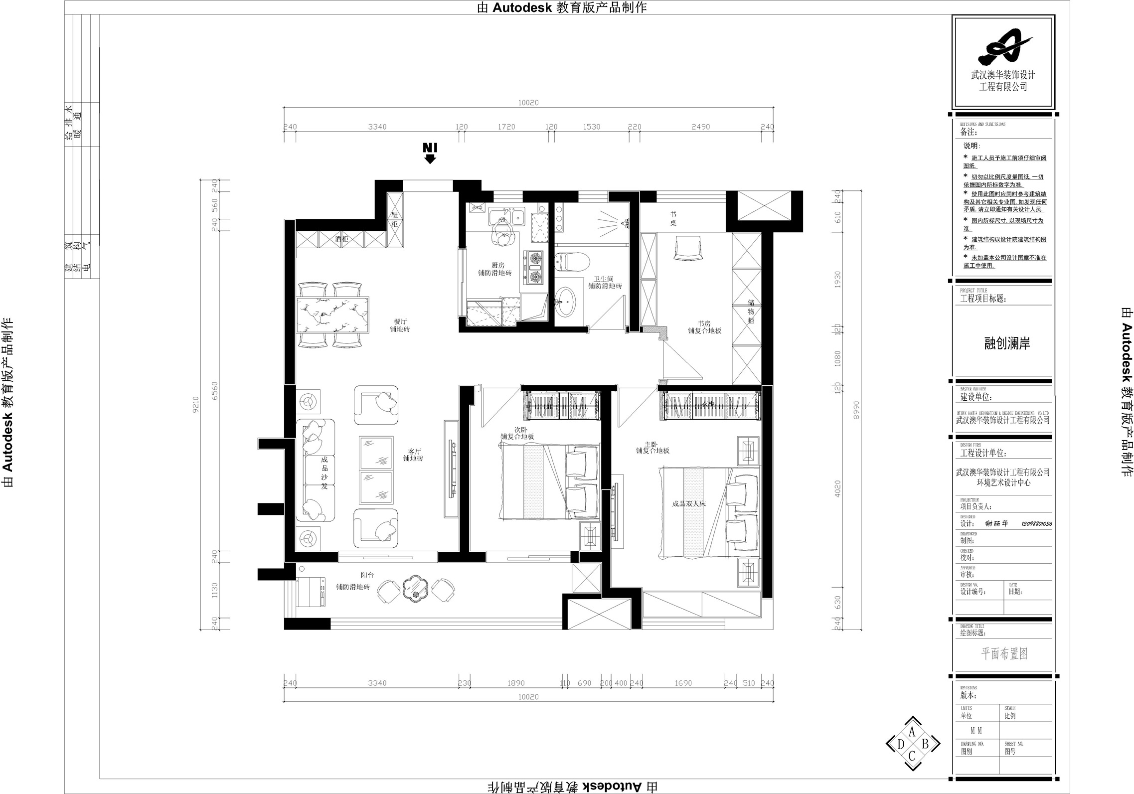
戶型解析:


廣電蘭亭榮薈的這套二居室住宅面積在90㎡左右,原有的戶型結構細小角落較多,加上原本房屋面積不大,因此需要對整體空間進行更加合理高效的利用。設計師在充分考慮業主使用需求的前提下,將次臥旁邊的瑣碎成一個迷你儲物間,有效避免了空間的浪費。而開放式廚房的設計,則有效節省了室內空間的占用。
客廳:



帶有磨砂質感的純色壁紙搭配上質感柔軟的布藝沙發,讓整個會客區域洋溢著舒適溫馨氣息。
餐廳:



餐廳區域與開放式的廚房設計在一塊區域,有效節約了室內空間。而黑白配色的桌椅簡約耐看搭配以花束,溫馨而又不失情趣感。
臥室:


帶有木質質感的地板貼紙、墻貼強調了空間的自然氣息,藍色床具與灰色曲線沙發則讓空間多一抹柔和明亮氣息。
衛生間:


衛生間面積不大,因此整體選用素雅的色彩進行裝飾,避免從視覺上造成壓迫感。
知精準報價 避裝修深坑
選擇您喜歡的風格
現代輕奢
現代美式
北歐
新中式
歐式
其他
知精準報價 避裝修深坑
選擇房屋面積區間
您的戶型
兩居室
三居室
四居室
五居室
六居室
知精準報價 避裝修深坑
稍等片刻,您的報價正在生中......
知精準報價 避裝修深坑
每日僅限前10名用戶