設計獨特
案例簡介:本案的業主是一對即將結婚的年輕夫妻,同為白領的他們不喜歡過度裝飾,希望設計師能夠使用一些盡可能簡約的元素裝飾空間,以保障耐看且易于打理。設計師按照業主的喜好與想法,選擇了簡約而又不失品質感的現代輕奢風進行裝飾設計,利用簡潔的元素與色彩強調空間的沉穩優雅氣息,而細節處的設計則提升空間的高級品質感。

戶型解析:
這套中建之星的三居室面積約為160㎡,整體的結構相對比較規整,設計師在進行規劃設計的時候巧妙的借助入戶作為軸線,將空間進行軟隔斷,將其中一部分打造成會客區域,另外一個區域改造成為就餐區域。而走廊盡頭則借助墻面裝飾畫進行點綴,避免走廊空間過于空蕩的同時還有效提升了空間的藝術感與品位感。
客廳:


嵌入式的電視機背景墻設計有效提升空間的現代時尚氣息,淺灰色的背景搭配上直線條則給人沉穩大氣的清新質感。
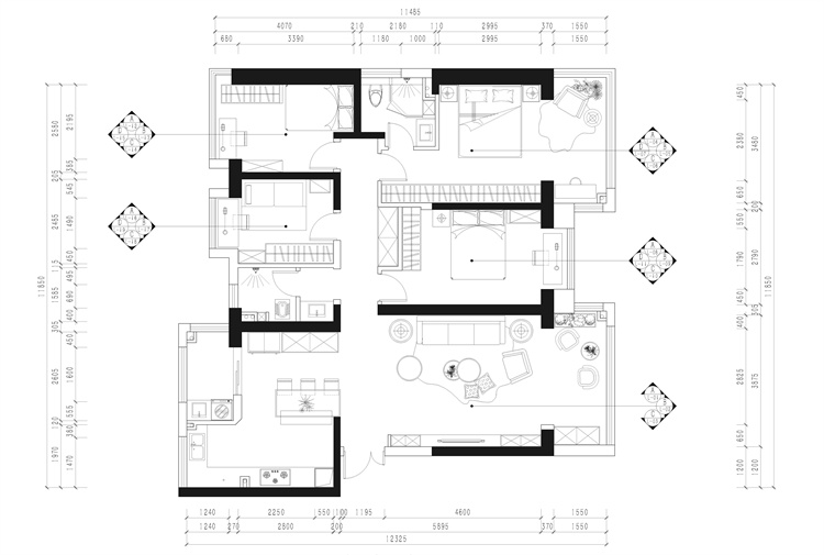
案例簡介:本案例的業主是一位企業的高管,家中的常住人員除了業主夫妻二人之外,保姆也會在家中居住,因此希望設計師能夠單獨規劃出一塊保姆居住的空間,同時將保姆的空間與其他人的空間分隔開,提升私密性。設計師通過與業主的溝通交流了解到,業主喜歡簡潔有質感的元素,因此選用現代輕奢風進行裝飾設計,利用材料的質感來提升室內環境的檔次感與格調感。
戶型解析:

西北湖一號這套四居室的占地面積約為199㎡,戶型結構并不規整,尤其是入戶區域的空間過多,因此設計師將入戶區域進行改造,借助戶型本身自帶的拐角進行視覺裝飾,提升室內隱私感,同時借用一些色彩、圖案裝飾,提升玄關區域的視覺美感感。為了業主業主及家庭人員的起居使用需求,空間中共規劃了三個衛浴區域,其中主臥帶一個,保姆房帶一個,提升空間私密性,而另外一個則作用共用洗浴空間,滿足客人的使用需求。
客廳:

對稱式的大理石背景墻搭配上黑色嵌入式儲物柜設計,營造高檔品質生活感。
餐廳:

就餐區域借助淡橘色桌椅打造,強調實用性。吊頂處不同類型的燈具,則起到軟隔斷的作用。
臥室:

以線條裝飾打造的墻面簡約而又不失沉穩高級感,圓形巨型吊頂則營造品質格調感。
案例簡介:本案例的業主是一對即將進行婚姻殿堂的新房夫妻,同為教師的兩人對于中國傳統文化有著濃烈的興趣,因此他們希望能夠在家居空間中融入一些傳統的中式元素,打造出一所帶有古典韻味而又不失喜慶氛圍的品質住宅。設計師按照業主們的想法選擇了古韻氣息較為濃厚的中式輕奢裝修風,借助各種古香古色的元素來營造一種悠然的歷史氛圍感。
戶型解析:

尚湖熙園這套三居室房屋的建筑面積約為127㎡,空間面積較為寬敞,除了帶有三個臥室空間之外,房屋帶有兩個陽臺,整體采光好且帶有視角觀賞優勢,因此設計師在進行空間規劃設計的時候充分利用了陽臺空間,借助陽臺將室外陽光與風景更好的引入室內,做到室內室外景色相融,在無形中提升整個家居空間的品質感與溫馨感。
客廳:

電視背景墻僅以一面簡單的淺褐色壁紙所構成,整體給人以清新自然感,而傳統中式造型的家具則為空間增添古韻之美。
餐廳:

帶有木材天然紋理的家具為就餐空間蒙上一抹自然的清新之美,而大面積落地窗則將陽光更好引入室內,提升就餐氛圍感。
知精準報價 避裝修深坑
選擇您喜歡的風格
現代輕奢
現代美式
北歐
新中式
歐式
其他
知精準報價 避裝修深坑
選擇房屋面積區間
您的戶型
兩居室
三居室
四居室
五居室
六居室
知精準報價 避裝修深坑
稍等片刻,您的報價正在生中......
知精準報價 避裝修深坑
每日僅限前10名用戶