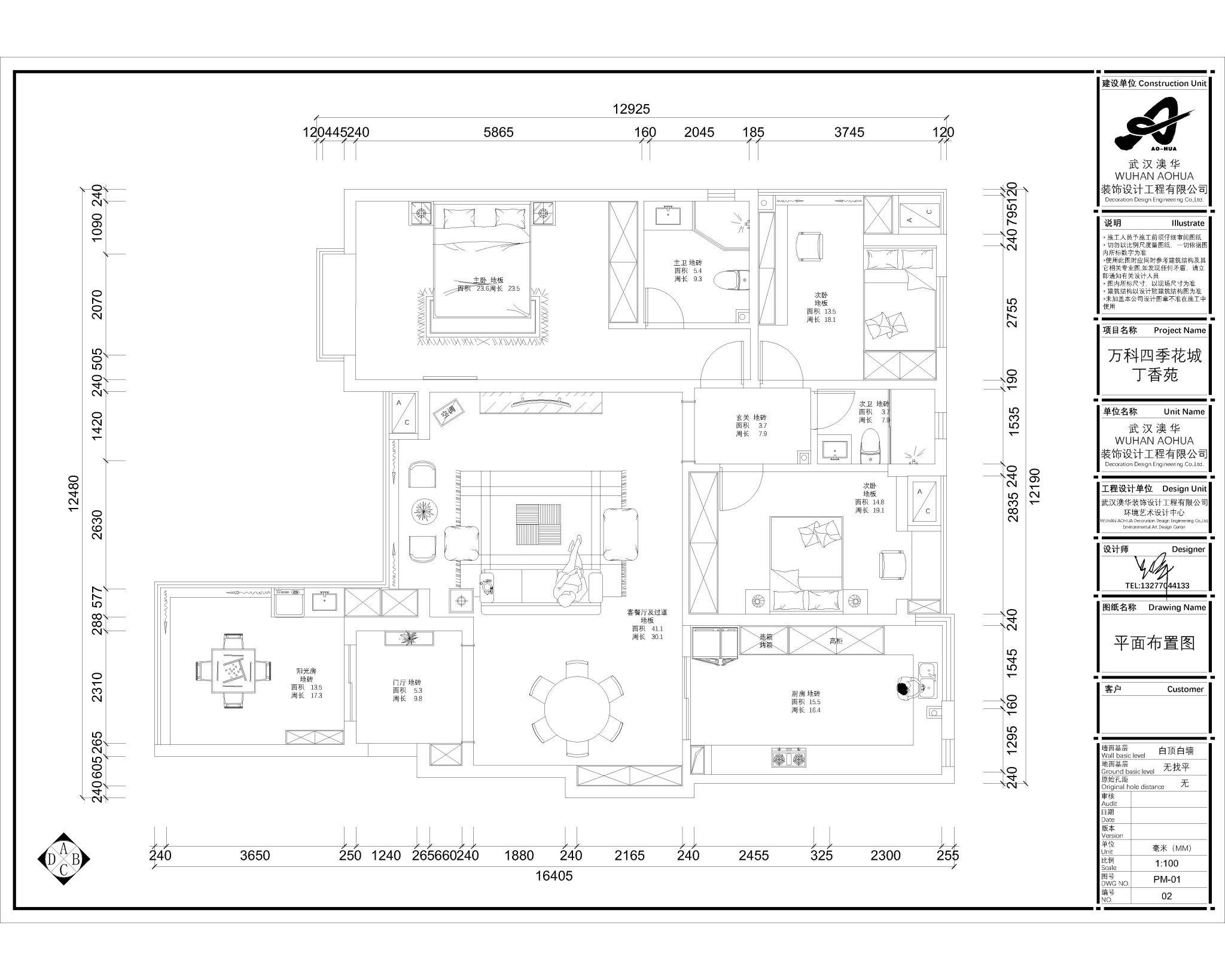
風格設計
案例簡介:傳統中式風多給人以沉穩、大氣渾厚感,因此多受老年群體的偏愛,而本案例的業主作為退休人士就對中國傳統文化情有獨鐘,因此設計師在與業主交流后敲定以中式風裝飾空間。大面積的核桃木搭配上簡約優雅的潔凈白,在平衡空間視覺效果的同時給人以清新的悠然古韻美感。
戶型解析:


萬科四季花城這套140㎡的三居室住宅整體結構近似正方形,因此設計師在進行空間規劃設計的時候就將客廳作為核心店,其他功能區域則圍繞客廳展開設計,以確保整體空間的和諧感。由于房屋面積不算寬敞,因此設計師在進行裝飾設計的時候舍棄了大量中式造型設計,而是借助色彩的搭配與傳統韻味畫來展示空間的清新古韻感。
客廳:


簡約木質仿古家具與現代時尚感濃烈的大理石背景墻之間的碰撞,呈現了宜古宜今的獨特時尚美。
次臥:


大面積的白色點綴山素雅的山水畫掛畫,強調清幽雅致的藝術氛圍。
衛生間:

透明玻璃通透性強,既可以起到干濕分離作用又不會顯得過于生硬,黑色鑲邊處理則為空間增添結構感。
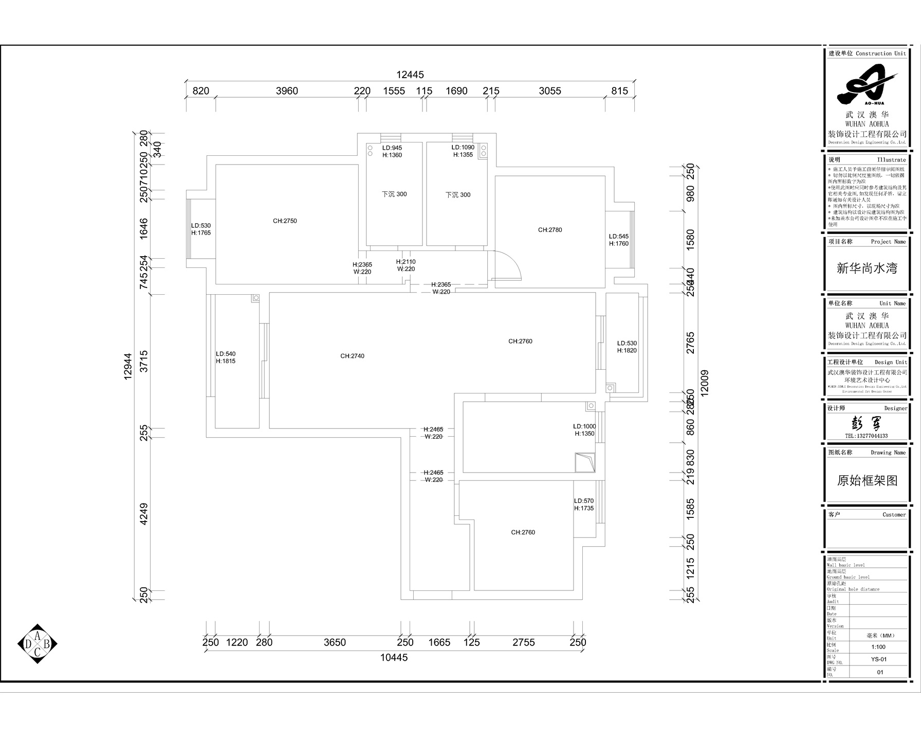
案例簡介:其實對于絕大多數人而言,家不需要花里胡哨的設計,只需要能夠給人一種踏實的歸屬感就足夠了,也因此本案例的設計師在與業主進行溝通之后,舍棄了各種華麗的設計,借助最為常見的灰白配色營造一種溫馨舒適感,同時借助簡單的墻面設計,在不會顯得過于刻意的前提下裝飾點綴空間,強調一種簡約而又不簡單的高級潔凈美。
戶型解析:

新華尚水灣這套137㎡的三居室住宅戶型規整且采光好,原有功能分區上的劣勢在于走廊過于狹長,容易給人以閉塞感。因此設計師充分利用戶型優勢,借助雙陽臺設計引進自然光,而走廊處則借用吊燈、墻壁等設計提升豐富感。為便利主人日常起居生活,設計師在主臥區域改造出貨一個迷你衛浴空間,以提升生活的私密感。
客廳:

灰色墻面搭配上以色塊組合而成的藝術掛畫,簡約而又不失現代時尚氛圍。大面積的灰色的配色淺褐色,給人以豐富的視覺效果。
餐廳:


就餐區域配色清新又柔和,木色與白色之間的組合營造空間溫馨靜謐感,墻面圓形藝術掛件簡約清新而又不失藝術感。
書房:

褐色與白色構成的書柜藝術感十足,搭配上簡單的圓形擺件,展示主人獨特審美與品位。
廚房:

大理石臺面賦予空間沉穩大氣感,半開放式設計讓廚房空間更顯寬敞大氣。
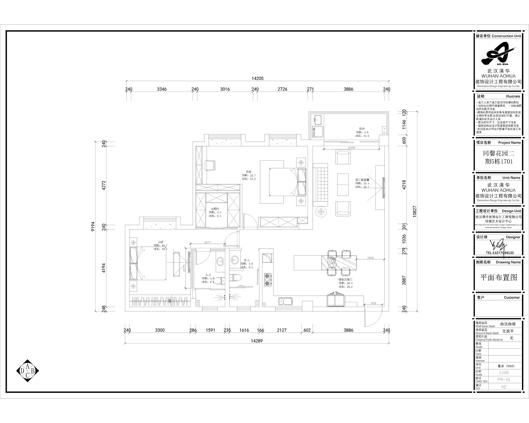
案例簡介:在家裝設計中有一種設計手法叫做留白,這指的是借助大面積的空白營造空間的韻味感,給人以無限遐想,這是簡約風中最為常見的設計手法,能夠讓人在家居空間中更好的放空自己。而本案例的業主不喜歡設計繁瑣的家居空間,希望通過最為簡潔的元素打造出干凈舒適的休憩空間,因此最終設計師為業主敲定了帶有留白設計的簡約風軟裝,通過合理的點綴搭配大面積留白來營造一種獨特的優雅高級感。
戶型解析:


同馨花園這套140㎡的三居室雖然原有的戶型結構較為平整四方,且已經完成了基本的分區規劃,但是由于不能滿足業主日常起居使用需求,因此設計師根據業主個人使用需求將內部次臥區域直接打通,其中一部分向主臥延伸打造成衣帽間,而另外一部分則用于擴大另外一個次臥的面積,以提升生活品質感。廚房區域的墻面則直接打通,將廚房改造成為一個開放式設計,再借助軟隔斷融入就餐區域,提升空間的利用率。
客廳:

摒棄各種花里胡哨的設計,借助大理石材質本身的質感提升空間品味。嵌入式背景墻設計既可以節省一定室內空間,又有效保障室內時尚感。
書房:

書房面積較小,因此僅擺放了簡單的桌椅,再搭配上懸掛式收納柜,滿足日常辦公、閱讀需求。
臥室


臥室背景墻借用線條抒發空間簡約潔凈氛圍,舒適柔軟的床具搭配上簡潔大方的設計,讓人在素雅潔凈中更好享受生活的寧靜。
衛生間:

衛生間借用透明玻璃門進行干濕分離,有效提升衛浴環境品質感。
知精準報價 避裝修深坑
選擇您喜歡的風格
現代輕奢
現代美式
北歐
新中式
歐式
其他
知精準報價 避裝修深坑
選擇房屋面積區間
您的戶型
兩居室
三居室
四居室
五居室
六居室
知精準報價 避裝修深坑
稍等片刻,您的報價正在生中......
知精準報價 避裝修深坑
每日僅限前10名用戶